Az értékesítő:
Horváth Zoltán
+36 70 550 6680

Eladó családi ház Monor, 59 900 000 Ft, 66 négyzetméter

59 900 000 Ft
családi ház, 66 négyzetméter
Építőanyag:
Tégla
Egész szobák:
3
Komfort fokozat:
Összkomfort
Ingatlan állapota:
Kitűnő
Azonosító:
11586969
Értékesítés típusa:
eladó
Ingatlan típusa:
családi ház
Jelleg:
Ikerház
Település:
Monor
Alapterület:
66
Telekterület:
240
Ár:
59 900 000 Ft
Kor:
Új építésű
Telekterület típusa:
négyzetméter
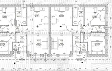
Megvételre kínálunk Monoron egy újépítésű, HÓSZIVATTYÚS, KLÍMÁS, teraszos, 66 nm-es, 3 szobás ikerházat. Minőségi alapanyagokból, igényes kivitelezés jellemzi a projektet, ahol a biztonság és a kényelem mellett az energiatakarékosság volt a fő szempont. Az ingatlan fűtéséről, valamint a használati melegvíz ellátásáról egy modern, energia takarékos, innovatív levegő-víz hőszivattyú gondoskodik H tarifás üzemeltetéssel. Ennek köszönhetően a rezsi költségek minimalizálódnak.   Az ingatlan hűtéséről egy klíma berendezés fog gondoskodni.   Ennél a beruházásnál most lehetősége van kompromisszumok nélkül egy olyan lakásba költözni, ahol Ön kiválaszthatja a hideg és meleg burkolatokat, szanitereket, valamint az egyéb kiegészítőket a családja legnagyobb megelégedésére, ez által személyre szabva álmai otthonát. A kulcsra kész ár tartalmazza a redőnyöket, három rétegű nyílászárókat, riasztó előkészítést, kaputelefon és motoros kapu kiépítést. A gépjárművekkel az ingatlanhoz tartozó térkövezett beállón lehet biztonságosan parkolni.     Az ingatlanhoz 240 nm-es privát telek tartozik   Igénybe vehető lehetséges kedvezmények: CSOK 5% Áfa visszatérítés Babaváró hitel Illeték kedvezmény vagy mentesség. Helyiség lista: - Előszoba - Közlekedő - WC - Szoba - Szoba - Fürdőszoba - Amerikai konyha, - Étkező - Nappali  - Tároló - Terasz A hirdetés referencia fotókat is tartalmaz.   Az ingatlan biztonságos, nyugodt, csendes, kertes házas övezetében, Monor egyik legszebb részén található. A környék fejlett infrastruktúrájának köszönhetően bővelkedik a szociális intézményekben, bölcsőde, óvoda, általános iskola, orvosi intézmények, bevásárlási lehetőségek, találhatóak a közelben. Közlekedése kiváló, busszal a centrum vagy vonattal a Nyugati pu. rövid idő alatt megközelíthető. Az M4-es autópálya öt perc alatt elérhető. Hitel, CSOK igénylésben díjmentes ügyintézéssel állunk rendelkezésére! Nálunk kiválaszthatja az Ön számára legkedvezőbb ajánlatot. Várom megtisztelő érdeklődésüket.
https://ingatlanok.hu/elado/haz/monor/60-millio-ft;66-negyzetmeter;3-szoba;nincs-megadva-futes/11586969