Eladó családi ház Monor 89 800 000 Ft

Leírás


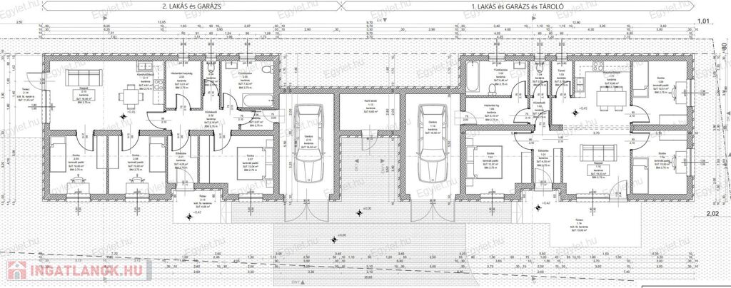
Megvételre kínálunk Monoron egy újépítésű, HÓSZIVATTYÚS, KLÍMÁS, teraszos, 86 nm-es, 4 szobás ikerházat. Minőségi alapanyagokból, igényes kivitelezés jellemzi a projektet, ahol a biztonság és a kényelem mellett az energiatakarékosság volt a fő szempont. Az ingatlan fűtéséről, egy modern, energia takarékos, innovatív levegő-víz hőszivattyú, míg a használati melegvíz ellátásáról egy hőszivattyús bojler gondoskodik H tarifás üzemeltetéssel.

 

Ennek köszönhetően a rezsi költségek minimalizálódnak.

 

Az ingatlan hűtéséről egy klíma berendezés fog gondoskodni.

 

Ennél a beruházásnál most lehetősége van kompromisszumok nélkül egy olyan lakásba költözni, ahol Ön kiválaszthatja a hideg és meleg burkolatokat, szanitereket, valamint az egyéb kiegészítőket a családja legnagyobb megelégedésére, ez által személyre szabva álmai otthonát.

 

A kulcsra kész ár tartalmazza a redőnyöket, három rétegű nyílászárókat, riasztó előkészítést, kaputelefon és motoros kapu kiépítést. A gépjárművekkel az ingatlanhoz tartozó garázsban vagy a térkövezett beállón lehet biztonságosan parkolni.  

 

Az ingatlanhoz megközelítőleg egy 500 nm-es privát telek tartozik.

 

Igénybe vehető lehetséges kedvezmények:

CSOK

5% Áfa visszatérítés

Babaváró hitel

Illeték kedvezmény vagy mentesség.



Helyiség lista:

- Előszoba

- Közlekedő

- Háztartási helyiség

- WC, mosdó

- Három hálószoba

- Fürdőszoba

- Amerikai konyha,

- Étkező

- Nappali 

- Tároló

- Terasz

- Garázs



A hirdetés referencia fotókat is tartalmaz.

 

Az ingatlan biztonságos, nyugodt, csendes, kertes házas övezetében, Monor egyik legszebb részén található. A környék fejlett infrastruktúrájának köszönhetően bővelkedik a szociális intézményekben, bölcsőde, óvoda, általános iskola, orvosi intézmények, bevásárlási lehetőségek, találhatóak a közelben.



Közlekedése kiváló, busszal a centrum vagy vonattal a Nyugati pu. rövid idő alatt megközelíthető. Az M4-es autópálya öt perc alatt elérhető.



Hitel, CSOK igénylésben díjmentes ügyintézéssel állunk rendelkezésére! Nálunk kiválaszthatja az Ön számára legkedvezőbb ajánlatot.



Várom megtisztelő érdeklődésüket.

Családi ház részletei

Ár: 89 800 000 Ft
Méret: 86 négyzetméter
Azonosító: 11597080
Irodai azonosító: 209002160
Telek: 500 négyzetméter
Ingatlan állapota: Kitűnő
Jelleg: ikerház
Építőanyag: Tégla
Komfort fokozat: Összkomfort
Kor: Új építésű
Egész szobák: 4