Eladó családi ház Vecsés 114 400 000 Ft

Leírás


Megvételre kínálunk Vecsésen egy új építésű 124 m²-es, HŐSZIVATTYÚS, teraszos, 5 szobás, dupla komfortos, gardróbos, dupla garázsos, családiházat. A ház tájolása és elosztása kiváló, tágas, világos, nyitott nagy terekkel rendelkezik.

Az ingatlan igényes kivitelezéssel, minőségi alapanyagokból, átgondolt tervezéssel, egyedi belső kialakítással készült, ahol a kényelem és az átgondolt tervezés mellett az energia takarékosság volt a fő szempont. Az ingatlan nappalija egy 14 nm-es teraszon keresztül kertkapcsolatos. Az ingatlan fűtéséről egy modern, energia takarékos, innovatív levegő-víz hőszivattyú gondoskodik H tarifás üzemeltetéssel.

Ennek köszönhetően a rezsi költségek minimalizálódnak.

Az ingatlan három darab inverteres  hűtő-fűtő klímával van felszerelve, így télen-nyáron egyöntetű kellemes a hőmérséklet. A használati melegvíz ellátás okos bojlerről történik.

 

A ház egy nagyobb telken fekszik, melyből kb. 280 nm privát kert. Gépjármű beállási lehetőségével a fedett térkövezett gépjármű beállón lehet biztonságosan parkolni.

A kulcsrakész ár tartalmazza az elektromos redőny előkészítést, három rétegű nyílászárókat, riasztó előkészítést, kaputelefon és motoros kapu kiépítést, valamint a klíma előkészítés kiépítését.

 

AZONNAL KÖLTÖZHETŐ!

 

AJÁNDÉK KONYHABÚTORRAL!

 

Társasházi szerződéssel, albetétesítve, külön mérőórákkal.

 

Igénybe vehető lehetséges kedvezmények:

- CSOK

- 5% Áfa visszatérítés

- Babaváró hitel

- Illeték kedvezmény vagy mentesség

 

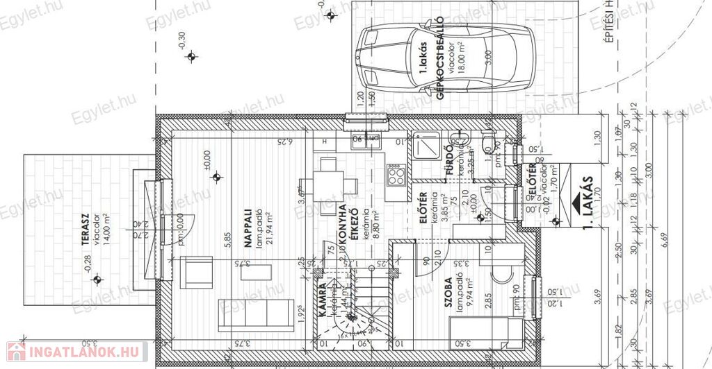
Helyiség lista a földszinten:

- Előtér

- Fürdőszoba

- Amerikai konyha

- Étkező

- Kamra

- Nappali 

- Szoba

- Terasz

 

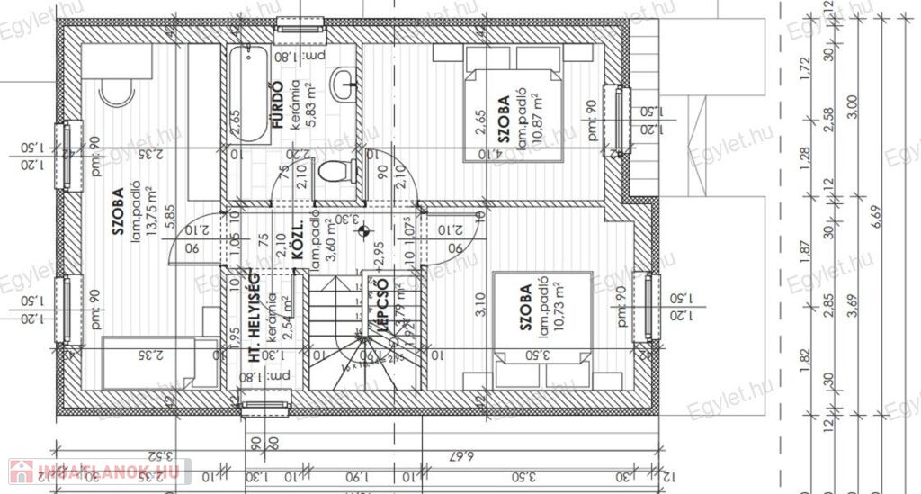
Helyiség lista az emeleten:

- Lépcsőház

- Fürdőszoba

- Közlekedő

- Gardrób

- Szoba

- Szoba

- Szoba

 

A hirdetés referencia fotókat is tartalmaz.

 

Az ingatlan biztonságos, nyugodt, csendes, kertes házas övezetében, Vecsés egyik legszebb részén található. A környék fejlett infrastruktúrájának köszönhetően bővelkedik a szociális intézményekben, bölcsőde, óvoda, általános iskola, orvosi intézmények, bevásárlási lehetőségek, találhatóak a közelben.

Közlekedése kiváló, busszal vagy vonattal Budapest központja rövid idő alatt megközelíthető. Az M0-ás, M 4-es, valamint az M 5-ös autópályák pár perc alatt elérhetőek.

 

Hitel, CSOK igénylésben díjmentes ügyintézéssel állunk rendelkezésére! Nálunk kiválaszthatja az Ön számára legkedvezőbb ajánlatot.

Várom megtisztelő érdeklődésüket.

Családi ház részletei

Ár: 114 400 000 Ft
Méret: 124 négyzetméter
Azonosító: 11568704
Irodai azonosító: 209002019
Telek: 300 négyzetméter
Ingatlan állapota: Kitűnő
Jelleg: családi ház
Építőanyag: Tégla
Komfort fokozat: Dupla komfort
Kor: Új építésű
Egész szobák: 5