Eladó családi ház Vecsés 137 800 000 Ft

Leírás


Megvételre kínálunk Vecsés legszebb részén egy garázsos, HÓSZIVATTYÚS, teraszos, 120 nm-es, 4 szobás, 2 fürdős ikerházat. Minőségi alapanyagokból, magas műszaki tartalommal, igényes kivitelezés jellemzi a projektet, ahol a biztonság és a kényelem mellett az energiatakarékosság volt a fő szempont. A ház átgondolt tervezésének köszönhetően kényelmes, otthonos, szellős, viszont ugyanakkor bővelkedik a praktikus megoldásokban.



A lakások csupán a garázsoknál vagy a tárolóknál érnek össze, így nincsenek a lakótérnél közös falak, ezért a szomszédok nem zavarják egymást. Az ingatlanok úgy működnek, mint ha önálló családi házak lennének, csak sokkal kedvezőbb áron.



Az ingatlan fűtéséről, valamint a használati melegvíz ellátásáról egy modern, energia takarékos, innovatív levegő-víz hőszivattyú gondoskodik H tarifás üzemeltetéssel.

Ennek köszönhetően a rezsi költségek minimalizálódnak.

A hőszivattyú a padlón keresztül fűt, így télen egyöntetűen kellemesen meleg a hőmérséklet.



A garázs a lakásból átjárható, valamint a ház hasznos területe bővíthető!



Ennél a beruházásnál most lehetősége van kompromisszumok nélkül egy olyan házba költözni, ahol Ön kiválaszthatja a hideg és meleg burkolatokat, szanitereket, valamint az egyéb kiegészítőket a családja legnagyobb megelégedésére, ez által személyre szabva álmai otthonát.

A kulcsra kész ár tartalmazza az elektromos redőny előkészítést, három rétegű nyílászárókat, riasztó előkészítést, kaputelefon és motoros kapu kiépítést, A gépjárművekkel az ingatlanhoz tartozó garázsban vagy térkövezett beállón lehet biztonságosan parkolni.



Az ingatlanhoz egy impozáns 270 nm-es privát telek tartozik.



A hirdetés referencia fotókat is tartalmaz.



Igénybe vehető lehetséges kedvezmények:

CSOK

5% Áfa visszatérítés

Babaváró hitel

Illeték kedvezmény vagy mentesség.



Az ingatlan árát a kulcsrakész állapotra adtuk meg, 2025. decemberi költözéssel.



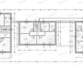
Helyiség lista a földszinten:

- Előtér

- Közlekedő

- Garázs

- WC

- Fürdőszoba

- Amerikai konyha,

- Étkező

- Nappali

- Tároló

- Terasz



Helyiség lista az emeleten:

- Közlekedő

- Lépcsőház

- Fürdőszoba

- Három szoba



Az ingatlan biztonságos, nyugodt, csendes, kertes házas övezetében, Vecsés egyik legszebb részén található. A környék fejlett infrastruktúrájának köszönhetően bővelkedik a szociális intézményekben, bölcsőde, óvoda, általános iskola, orvosi intézmények, bevásárlási lehetőségek, találhatóak a közelben.



Közlekedése kiváló, busszal vagy vonattal Budapest központja rövid idő alatt megközelíthető. Az M0-ás, M 4-es, valamint az M 5-ös autópályák pár perc alatt elérhetőek.



Hitel, CSOK igénylésben díjmentes ügyintézéssel állunk rendelkezésére! Nálunk kiválaszthatja az Ön számára legkedvezőbb ajánlatot.



Várom megtisztelő érdeklődésüket.

Családi ház részletei

Ár: 137 800 000 Ft
Méret: 120 négyzetméter
Azonosító: 11588120
Irodai azonosító: 209001898
Telek: 270 négyzetméter
Ingatlan állapota: Kitűnő
Jelleg: ikerház
Építőanyag: Tégla
Komfort fokozat: Dupla komfort
Kor: Új építésű
Egész szobák: 4