Eladó lakás Budapest VI. ker 105 900 000 Ft

Leírás


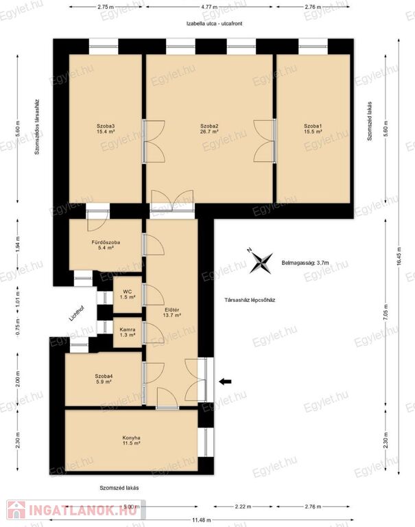
Izabella utcában felújítandó állapotú lakás eladó



Legfontosabb információ:

- 97nm alapterületű, 3+1 szobás lakás,

- a 3 szoba 4db ablaka az Izabella utcára nyílik,

- a lakás belső elrendezése átalakítható,

- karbantartott, liftes társasház.



A lakás rövid határidővel birtokba vehető.



További információkért hívjon bizalommal!

Lakás részletei

Ár: 105 900 000 Ft
Méret: 97 négyzetméter
Azonosító: 11614915
Irodai azonosító: 209002223
Emelet: 3. emelet
Építőanyag: Tégla
Fűtés jellege: Konvektoros
Ingatlan állapota: Felújítandó
Komfort fokozat: Komfort

Egyéb jellemzők

  • Lift